- 加拿大28
- 电话:021-51875578
- 传真:021-57443237
- 手机:13916747333
- 邮箱:a15566@126.com
- 地址:奉贤区工业综合开发区942号
当前位置:首页 >> 消防阀门
>> 旋流防止器 >> 旋流防止器 更新时间 2025-12-4 21:19:46
旋流防止器
| 旋流防止器 |
![]() |
产品名称: | 旋流防止器 | |||||
| 型号: | LQD41X | ||||||
| 口径: | DN65-500 | ||||||
| 压力: | 1.0-2.5MPa | ||||||
| 材质: | 铸铁、球铁、铸钢 | ||||||
|
|||||||
| 您正在浏览:【旋流防止器】 | |||||||
旋流防止器详细介绍
旋流防止器产品概述:
旋流防止器是一种用于防止水箱(池)在输送液体时产生旋流和防止空气进入管道的特殊管件。其作用是安装在水箱(池)水泵吸水管端口上,用来消除水箱(池)内的旋流,以确保水泵能一直全力起动并正常工作,避免空气进入水泵产生气蚀现象,能使水箱(池)里输送液体的液面降到较低液位,以确保达到最大的流量输送。本产品的设计制造严格按照欧盟标准EN12845的要求,且其性能符合GB50974-2014《消防给水及消火栓系统技术规范》的要求。

旋流防止器适用范围:
旋流防止器适用于化工、能源、建筑、消防水工程等领域,特别是在消防取水池(箱)中使用,能保证有效容积被全部利用,提高消防水池有效利用率,减少死水区,实现节地要求。救援时,消防用水能得到最大限度的使用。
旋流防止器产品特点:
旋流防止器标准规范:
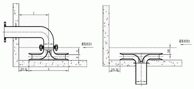
旋流防止器安装示意图:

旋流防止器技术参数:
旋流防止器外形结构图:

旋流防止器安装说明书:
旋流防止器连接尺寸:
1、旋流防止器是按照欧盟标准EN12845的标准设计与制造,最低淹没深度可至100mm而不产生旋流,大大提高了水池的有效利用率。
2、有效消除抽吸水过程中水箱(池)产生的旋流。
3、防止因旋流夹着空气进入水泵,实现水泵高效能输水,避免水泵产生气蚀现象而被损坏。
4、旋流防止器的结构简便而结实,实现经济型安装、免维护。
5、符合GB/T 17219的卫生要求。
旋流防止器标准规范:
国家规定:GB50974-2014《消防给水及消火栓系统技术规范》中第5.1.12条规定:当消防水泵从消防水箱吸水时,因消防水箱设置吸水井困难,为减少吸水管的保护高度要求吸水管上设置旋流防止器,以提高消防水箱的储水有效量。
第5.1.13条规定:消防水泵吸水口的淹没深度应满足消防水泵在最低水位运行安全的要求,吸水管喇叭口在消防水池最低有效水位下的淹没深度应根据吸水管喇叭口的水流速度和水力条件确定,但不应小于600mm,当采用旋流防止器时,淹没深度不应小于200mm。
旋流防止器安装示意图:

旋流防止器技术参数:
| 接法兰压力等级 | 1.0MPa ,1.6MPa ,2.5MPa |
| 工作介质 | 直饮水、饮用水、水、污水、油、弱酸或弱碱介质 |
| 工作温度 | 0~120℃ |
| 材质 | 铸铁、铸钢、不锈钢,材质成分符合GB/T 20878标准 |
| 使用要求按标准 | GB 50974,同时符合欧盟标准BS EN12845的标准设计要求 |
| 法兰连接尺寸标准 | GB/T 17241.6,同时符合B.S.4504 |
| 符合标准 | GB/T 17219的卫生要求 |
旋流防止器外形结构图:

旋流防止器安装说明书:
1、口径:DN65-DN500(现有的产品,规格可拓展)。
2、安装方式:可正装(吸水水箱)也可以倒装(高位水箱)。
3、安装要求:旋流防止器的外缘与水池池壁应至少留有0.3d的间隙,d为吸水管到的公称尺寸。
4、性能要求:在缺水过程中,水位下降为最低水位X时,水池页面应无漩涡产生。
5、材质要求:奥氏体不锈钢材质(304).
6、适用范围:适用于化工、能源、消防、水工程等领域。
旋流防止器连接尺寸:
| 旋流防止器的尺寸按照EN.12845,条例9.35,图所示(单位mm) | |||||||||||
| 旋流防止器立装 | |||||||||||
| 管道公称直径(DN) | 65 | 80 | 100 | 150 | 200 | 250 | 300 | 350 | 400 | 450 | 500 |
| 旋流防止器顶板宽度A | 220 | 220 | 423 | 623 | 827 | 1030 | 1232 | 1232 | 1232 | 1232 | 1232 |
| 旋流防止器顶板高度B | 44 | 44 | 54 | 79 | 101 | 130 | 155 | 191 | 191 | 209 | 209 |
| 旋流防止器位置C | 300 | 310 | 412 | 512 | 614 | 715 | 816 | 816 | 816 | 816 | 816 |
| 水箱允许最低水位D(旋流防止器) | 100 | 100 | 100 | 100 | 100 | 100 | 100 | 100 | 100 | 100 | 100 |
提示:本文中所有文字、数据、图片均只适用于参考,需要了解更详细的【旋流防止器】参数、选型、价格等请联系我们,我们将竭诚为您服务!



















