- 加拿大28
- 电话:021-51875578
- 传真:021-57443237
- 手机:13916747333
- 邮箱:a15566@126.com
- 地址:奉贤区工业综合开发区942号
当前位置:首页 >> 隔膜阀
>> 三通隔膜阀 >> 三通衬胶隔膜阀 更新时间 2025-12-4 21:17:53
三通隔膜阀
| 三通衬胶隔膜阀 |
![]() |
产品名称: | 三通衬胶隔膜阀 | |||||
| 型号: | G49J | ||||||
| 口径: | DN25-100 | ||||||
| 压力: | 0.6-1.6MPa | ||||||
| 材质: | 铸铁、铸钢、不锈钢 | ||||||
|
|||||||
| 您正在浏览:【三通衬胶隔膜阀】 | |||||||
三通衬胶隔膜阀详细介绍
三通衬胶隔膜阀产品概述:
G49J三通衬胶隔膜阀是一种特殊形式的具有截断功能的阀,其启闭件由钢质阀瓣与软质材料(橡胶和氟塑料复合)制成的隔膜组成,并将阀体内腔与阀盖内腔隔开以达到截断管内介质目的。专用于控制非腐蚀性或一般腐蚀性介质,阀体内腔表面无衬里或覆有可供选择的各种橡胶,适用于不同工作温度和流体管路。三通衬胶隔膜阀的启闭是依靠旋转手轮而达到的。
三通衬胶隔膜阀结构特点:
三通衬胶隔膜阀连接尺寸:
三通衬胶隔膜阀结构特点:
1、弹性密封的开闭件,确保没有内漏;
2、流线型的流道,使得压力损失小;
3、没有填料函,因此没有外漏;
4、阀体与盖被中间隔膜隔开,使得隔膜上方的阀盖,阀杆零件不受介质侵蚀;
5、隔膜可更换,维护费用低;
6、衬里材料的多样性,可适用于各种介质,并具有良好的耐腐蚀性。
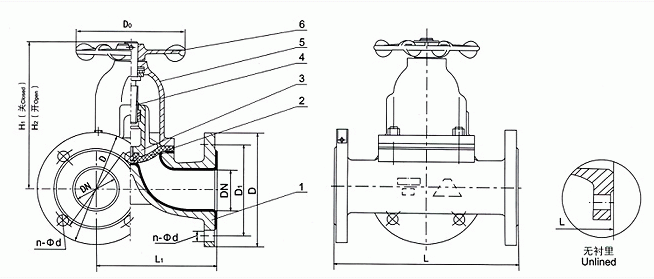
部件列表:1、阀体 2、隔膜 3、阀瓣 4、阀杆 5、阀盖 6、手轮
三通衬胶隔膜阀零件材料:
三通衬胶隔膜阀外形结构图:

三通衬胶隔膜阀零件材料:
阀体:铸铁、球墨铸铁、碳钢、不锈钢
阀盖:铸铁、球墨铸铁、碳钢、不锈钢
衬里:无衬里、橡胶
隔膜:橡胶
阀瓣:铸铁
阀杆:碳钢、不锈钢
手轮:铸铁
三通衬胶隔膜阀外形结构图:

三通衬胶隔膜阀连接尺寸:
|
DN
mm
|
公称压力
MPa
|
工作压力
MPa
|
L
(mm)
|
D
(mm)
|
D1
(mm)
|
n-φd
(mm)
|
F
(mm)
|
H1
(mm)
|
H2
(mm)
|
D0
(mm)
|
重量 |
25 |
1.0 |
1.0 |
160 |
96 |
115 |
85 |
4-14 |
108 |
120 |
66 |
5.5 |
32 |
180 |
118 |
135 |
100 |
4-18 |
138 |
157 |
96 |
8.5 |
||
40 |
200 |
135 |
145 |
110 |
4-18 |
147 |
167 |
96 |
12.5 |
||
50 |
230 |
150 |
160 |
125 |
4-18 |
167 |
192 |
96 |
17 |
||
65 |
290 |
182 |
180 |
145 |
4-18 |
194 |
229 |
165 |
24.5 |
||
80 |
310 |
210 |
195 |
160 |
4-18 |
212 |
252 |
230 |
33.5 |
提示:本文中所有文字、数据、图片均只适用于参考,需要了解更详细的【三通衬胶隔膜阀】参数、选型、价格等请联系我们,我们将竭诚为您服务!



















